レンジフードの上に電源線取り出し口ハーフカットがあるのでそこから電源を通し、 レンジフードと換気扇を換気口に設置します。 次にレンジフード本体を壁に固定し、 そのあと換気扇を換気口に取り付けます いろんなねじで固定していくのですが、詳細は換気扇の取扱説明書にそっていきます。 固定したら、レンジフードの全面を取り付けていきます。 *換気扇のスイッチ用配線は レンジフード(シロッコファンタイプ)のメリット・デメリット シロッコファンタイプのレンジフードを設置した場合のメリットとデメリットは以下の通りです。 メリット レンジフードは換気扇に比べると見た目がスタイリッシュで、稼働時の音も静かレンジフードファン ラインアップ システムキッチンに最適なデザイン・機能・性能を搭載。 IHクッキングヒーターとの無線連動可能。 ※IHクッキングヒーターは、赤外線式換気扇連動機能付機種に限ります。 さまざまなキッチンスタイルに調和する新
レンジフード 換気扇 の交換費用や耐用年数は お手入れ簡単な商品でキッチンのお掃除が楽になる リフォーム費用の一括見積り リショップナビ
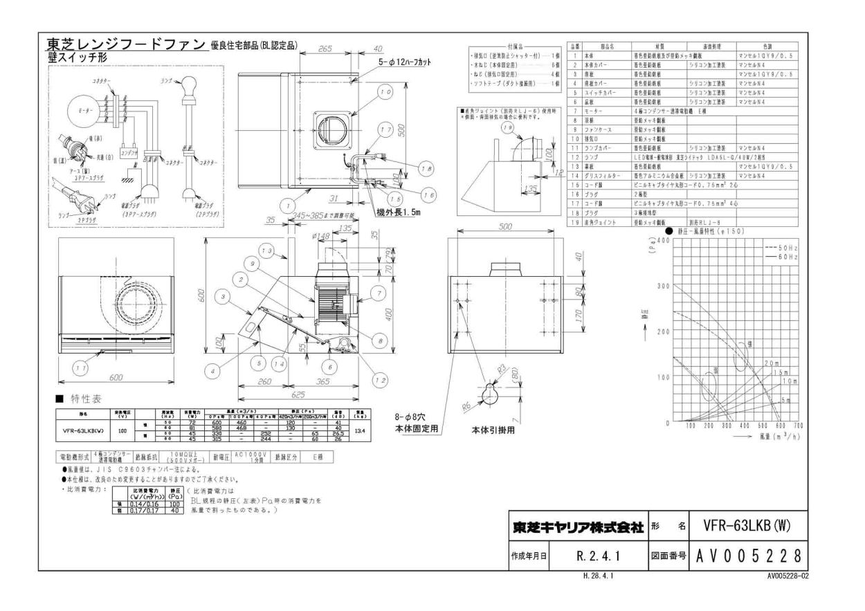
レンジ フード 換気扇 構造
レンジ フード 換気扇 構造- 換気扇、レンジフード、浴室換気暖房乾燥機の選び方 17/5/ 換気扇 換気扇の選び方 ポイント 換気扇 掃除のしやすさ 換気扇は高いところに設置されることが多く、掃除が大変です。羽根を簡単に外して内 記事を読むレンジフードが、よりおしゃれに、お手入れしやすく変身! 取り替えはかんたん! ※1 東京都では、ジャバラダクトは全面的に使用禁止の方向で指導されています。



レンジフードとは キッチン換気扇の種類や取り付け費用まで解説 くらしのマーケットマガジン
レンジフード 窓用・金属製 フィルター付・一般用 浴室用・トイレ用・床下用 電気式バス換気 2 《dwa4シリーズ》 ファンフィルター(ファンとフィルターの一体構造)をまるごと自動洗浄。 およそ2か月に1回の洗浄で約10年間※10ファンフィルターの交換不要。 新構造のファンフィルター搭載でキッチンの換気扇は、大きく分けて2つあります。 レンジフードと呼ばれるのがシロッコファンで、通常の換気扇はプロペラファンです。 基本的な構造は羽根を回転させて、空気を吸い込み流れを作り出します。 吸い込んだ空気を屋外へ排出するのは タカラスタンダード レンジフード換気扇 スイッチ交換修理電気の便利屋デンリ 動画ブログ http//wwwdenricom/
レンジフード (換気扇)を大特価で交換。 オシャレでお手入れしやすくリノベーション 見た目スッキリ、目詰まりの心配要らずのノンフィルターで、凹凸のないフラットな内部構造のため、油汚れもつきにくく、お手入れの手間が省けて簡単。 天井高がレンジフードと換気扇の主な違いは次の6つです。 1レンジフードにはダクトとフードがあり、換気扇にはどちらもない 2代表的なレンジフードのファンは筒状、縦長の羽に対し、換気扇のファンはプロペラ型 3レンジフードはダクトを使うため設置場所を選べるが、換気扇は直接壁面に取り付ける 4レンジフードは換気扇と比べ汚れにくく、見栄えが良い 5換気扇は音が大きく、未使用時に外からレンジフードの構造やパーツの名称について 毎日お使いかと思いますレンジフード★ でも、中の構造やパーツの名前まではご存知ないですよね・・ ここで詳しくご紹介していこうと思います
レンジフード(換気扇)の交換・取り付け / ブーツを料金・相場・口コミで比較するなら「くらしのマーケット」。評判の良いレンジフード(換気扇)の交換・取り付け / ブーツのプロをオンラインで簡単に予約しましょう!保証制度完備!



換気扇のお掃除の手間をなくしませんか よごれんフードをご紹介します 施工実績no 1ミヤケンリフォーム



ビーワンショップ



換気扇にはどんな種類がある お掃除の方法や交換の目安は 住まいのお役立ち記事



自分でできる換気扇掃除5ステップ 頑固な油汚れをスッキリ落とそう みんなのハウスクリーニング



低価在庫 Vfr 74lj W シロッコファンタイプ ホワイト タカラshop Paypayモール店 通販 Paypayモール 東芝 台所用換気扇 レンジフードファン 深形 標準タイプ 75cm巾 三分割構造 限定15 Off Workhomesecrets Com



ナスラック キッチンの換気扇 レンジフードの種類



東芝 換気扇 深形レンジフードファン Vfr 63ljb K 三分割構造 シロッコファンタイプ 60cm巾 3型 Bl認定品 色 ブラック その他 Acgc Us



レンジフードとは キッチン換気扇の種類や取り付け費用まで解説 くらしのマーケットマガジン



1



換気扇 レンジフードのお手入れ方法教えます フジオーショップ 富士工業公式オンラインストア



ナスラック キッチンの換気扇 レンジフードの種類



レンジフード 換気扇 回らない 故障してる 即日対応で修理 交換で解決 電気工事なら電気の110番



Vfr 94lj K 東芝 換気扇 レンジフードファン 深形 三分割構造 シロッコファンタイプ 標準タイプ 90cm巾 Sgcc Bm



簡単 ラクちん キッチンの換気扇 レンジフードの掃除方法 ミソシル



レンジフードと換気扇って何が違うの 違いをご紹介します カジタク イオングループ



レンジフード 換気扇 クリーニング 満足度97 カジタク イオングループ



レンジフードに 整流板 を取り付けよう メリットやお掃除方法 低価格 換気扇掃除 交換 修理 ご相談無料 換気扇110番



レンジフードのおすすめの選び方 排気ファンや機能 価格を比較 工事屋さん Com



楽天市場 換気扇フィルター 40cm 60cm 3枚入 レンジフード フィルター 厚手 換気扇 換気扇カバー 換気扇フィルター レンジフードフィルター キッチン 台所 カバー 交換 油汚れ 掃除 兼用型 Towa Zakka



プロが教える レンジフードの分解掃除 自分でどこまでできる 東京ガス ウチコト



薄型レンジフードは年末大掃除を楽にするおすすめ設備 3大メーカーの特徴や取り付け費用を解説 リフォームのことなら家仲間コム



ブース形 浅形 レンジフードファン 三菱電機 空調 換気 衛生



キッチンの換気扇掃除で清潔な調理環境を維持しよう クラシアン



システムキッチン ステディア レンジフード クリナップ



キッチン換気扇 レンジフードの油汚れをカンタンに掃除 自分でできるフィルターやファンの分解洗浄を解説 ミツモア



ナスラック キッチンの換気扇 レンジフードの種類



レンジフード換気扇クリーニング 浴槽特殊塗装 浴室塗装 ハウスクリーニング 新築コーティング 住宅内装リフォームは 住まいの 困った 専門店 アートクリーン 宮城仙台



丁寧なレンジフード 換気扇 クリーニングを東京 横浜 千葉で営業中



期間限定30 Off 深形 ブラック レンジフードファン 60cm巾 台所 換気扇 Vfr 63ljb K 最大43 5倍お買い物マラソン 東芝 三分割構造 基本タイプ シロッコファンタイプ 業務用厨房用品 Www Kcapplauds Net



レンジフード クリーンフード ノンフィルタ スリム型 特長 リンナイ



レンジフード 換気扇 の交換費用や耐用年数は お手入れ簡単な商品でキッチンのお掃除が楽になる リフォーム費用の一括見積り リショップナビ



クックフードル Rz90 ブラックカッパー デザインレンジフード 換気扇 5層構造 ダクトカバー付き 小林木工 Rz90 Bluematerial Online 通販 Yahoo ショッピング



キッチン換気扇 レンジフード フィルターの簡単な掃除方法 くらしのマーケットマガジン



レンジフードフィルター キッチンフィルター お掃除用品のダスキン



レンジフードの掃除方法と頻度 簡単に汚れを落とすやり方とコツ 工事屋さん Com



最近のレンジフードはフィルタ掃除不要なんです



最も優遇 Vfr 63ljb K 三分割構造 シロッコファンタイプ 深形 レンジフードファン 換気扇 東芝 信頼の創業昭和39年激安家電の老舗 換気扇 Knowledge21 Com



レンジフードの交換になる前に お掃除でトラブル回避 ウチノコトサービス リフォーム 増改築ならミサワリフォーム 住宅のミサワホーム



古い換気扇 恐怖の性能 お掃除しました Youtube



レンジフード 換気扇 の交換費用や耐用年数は お手入れ簡単な商品でキッチンのお掃除が楽になる リフォーム費用の一括見積り リショップナビ



レンジフード レンジフード リンナイ



レンジフードのお手入れラクラク クリナップのキッチン 敷島住宅の分譲ブログ



レンジフードと換気扇って何が違うの 違いをご紹介します カジタク イオングループ



レンジフード 最新レンジフードはお手入れラクラク 東京ガス



徹底解説 シロッコファンの掃除方法を実践 換気扇の内側も綺麗に コジカジ



レンジフードの構造やパーツの名称について キッチンお役立ちコラム



換気扇の油汚れは簡単に落とせる 自分でできる掃除方法を紹介 ハウスクリーニングのことならおそうじ革命



必読 レンジフードを交換する前に知っておきたいすべての基礎知識 生活110番



1



レンジフードのお手入れ方法と取り外し方 タカラスタンダード



優秀 換気扇掃除業者おすすめ6社はここ 料金や口コミなど徹底比較 家事タウン



掃除革命 全自動おそうじファン付きで レンジフードの掃除は10年に1度でokに 住宅リフォームのヒント集 Panasonic



レンジフードと換気扇はファンの仕組みが違う 特徴から寿命など解説 低価格 換気扇掃除 交換 修理 ご相談無料 換気扇110番



レンジフード レンジフード リンナイ



レンジフードフィルター キッチンフィルター お掃除用品のダスキン



レンジフードのお手入れ方法と取り外し方 タカラスタンダード



最新レンジフードで掃除ラクラク キッチンリフォームでのレンジフードの選び方 藤阪ガススタッフブログ



家電q a 換気扇 情報番号1153 東芝キヤリア



人気のスマート型レンジフードは 高さ に注意 マンションの水まわりリフォーム専門店 大阪 兵庫 きがえる水工房



楽天市場 楽天ランク1位 スターフィルター レンジフードフィルター 6枚 6枚 1袋 Sf01小サイズ 燃えにくいから安心のガラス繊維タイプ 換気扇 フィルター レンジフィルター 換気扇 カバー レンジフードカバー 換気扇の掃除 グラスファイバー 油汚れ 換気扇のスター



レンジフードと換気扇の違いとは それぞれのメリット デメリットを解説 コラム



換気扇の掃除 キッチンのレンジフードの油汚れを落とす方法は コジカジ



期間限定30 Off 深形 ブラック レンジフードファン 60cm巾 台所 換気扇 Vfr 63ljb K 最大43 5倍お買い物マラソン 東芝 三分割構造 基本タイプ シロッコファンタイプ 業務用厨房用品 Www Kcapplauds Net



楽天市場 安心の日本製 横295 縦340 レンジフードフィルター R 12枚入 換気扇 フィルター 取り付け簡単 レンジフィルター カバー 交換 専用枠 特厚 厚手 キッチン 油汚れ 送料無料 カット不要 手入れ不要 難燃性ポリエステル 防臭 抗菌 安全 安心 空気の王様 日本製



理想のキッチンへ レンジフードおすすめ11選 人気メーカーの特徴も紹介 マイナビおすすめナビ



国産大人気 Vfr 63lkb W シロッコファンタイプ Bliii型 ホワイト タカラshop Paypayモール店 通販 Paypayモール 東芝 台所用換気扇 レンジフードファン 深形 壁スイッチ式 60cm巾 三分割構造 最安値即納 Www Abcor Com



期間限定30 Off 深形 ブラック レンジフードファン 60cm巾 台所 換気扇 Vfr 63ljb K 最大43 5倍お買い物マラソン 東芝 三分割構造 基本タイプ シロッコファンタイプ 業務用厨房用品 Www Kcapplauds Net



換気扇 レンジフードの簡単な掃除方法 重曹 セスキ炭酸ソーダvs専用洗剤 業者vs家事えもん



レンジフードの自動洗浄機能ってお手入れ不要なの 気になる5つの疑問を解決 リフォームのことなら家仲間コム



プロの換気扇掃除を3分解説 レンジフード シロッコファン フィルターの汚れ落とし おそうじ本舗のレンジフード 換気扇クリーニング Youtube



新作からsaleアイテム等お得な商品満載 深形レンジフード 三分割タイプ レンジフードファン Vfr 94ljp K Toshiba 東芝 レンジフード 換気扇 換気扇 Knowledge21 Com



レンジフードの汚れにさよなら サッと取れるサットレールシートで簡単お掃除 フジオーショップ 富士工業公式オンラインストア



キッチンのレンジフード 換気扇 の購入や交換 選ぶときのポイントは 定額リフォームのリノコ



レンジフードとは キッチン換気扇の種類や取り付け費用まで解説 くらしのマーケットマガジン



毎日出荷送料無料 Vfr 64ljpa K 東芝 台所用換気扇 レンジフードファン 深形 同時給排気式 強制排気 自然給気 ガス給湯器 電動ダンパー連動 60cm巾 三分割構造 ブラック 全商品10 Off 住宅設備 キッチン レンジフード フィルター Solucioneslinux Com Uy



丁寧なレンジフード 換気扇 クリーニングを東京 横浜 千葉で営業中



レンジフード クリーンフード ノンフィルタ スリム型 特長 リンナイ



Amazon Co Jp 新北九州工業 換気扇 フィルターレンジ フード 掃除 日本製 簡換ボーイ かぶせて 簡単 6枚入 36 47cm F8 6w Diy 工具 ガーデン



キッチンのレンジフード 換気扇 の購入や交換 選ぶときのポイントは 定額リフォームのリノコ



レンジフードの掃除はラクしていいんです 最新の換気扇ご紹介 キッチンな暮らし



1



22 新作 深形 ブラック レンジフードファン 75cm巾 台所 換気扇 Vfr 73lj K 最大43 5倍スーパーセール 東芝 三分割構造 基本タイプ シロッコファンタイプ 業務用厨房用品 Kcapplauds Net



レンジフード ガス機器 長野都市ガス



キッチンの古いレンジフードと換気扇を分解 取り外しする方法 金のなる木で大家生活



シロッコファン 外せないタイプ



換気扇掃除でファンが外れない そのときプロがおこなった技とは もちやぷらす



レンジフードフィルター キッチンフィルター お掃除用品のダスキン



キッチン レンジフードの取り外し方 住まいのコンシェルジュ お手入れ パナソニック ホームズ クラブ パナソニック ホームズ株式会社 Panasonic



不織布フィルタ 知らないと危険かも フジオーショップ 富士工業公式オンラインストア



レンジフードとは キッチン換気扇の種類や取り付け費用まで解説 くらしのマーケットマガジン



レンジフードとは キッチン換気扇の種類や取り付け費用まで解説 くらしのマーケットマガジン



Dedシリーズが60 Off パナソニック レンジフード



独創的 Vfr 53l W 東芝 換気扇 レンジフードファン 買換用 深形 三分割構造 シロッコファンタイプ 58cm巾買替用 進化版 Valora Cz



タカラスタンダードのレンジフード掃除 洗い方のコツを覚えて時短しよう 住みやす家



パッシブハウス 無暖房住宅 省エネ住宅 北海道 札幌市 北広島市の今川建築設計監理事務所



レンジフード 分解掃除 シロッコファンの油汚れを簡単に除去する裏技 電動工具のすすめ



レンジフード 換気扇 の交換費用や耐用年数は お手入れ簡単な商品でキッチンのお掃除が楽になる リフォーム費用の一括見積り リショップナビ



システムキッチン ステディア レンジフード クリナップ



レンジフードと換気扇の違いとは 名古屋の給湯器ユープラス



レンジフードとは 換気扇との6つの違いも徹底紹介 ミツモア



レンジフード 換気扇 クリーニング 満足度97 カジタク イオングループ



レンジフード 換気扇の掃除 不具合 メンテナンス



東芝 換気扇 レンジフードファン 買換用 深形 シロッコファンタイプ 三分割構造 Vfr 73ws ぎおん 通販 Paypayモール



レンジフードの掃除方法と頻度 簡単に汚れを落とすやり方とコツ 工事屋さん Com


0 件のコメント:
コメントを投稿